Helle 4-Zimmer-Dachgeschosswohnung in zentraler Lage von Ahaus

48683 Ahaus, Dachgeschosswohnung zur Miete

Kontaktdaten

Objektdaten

  • Objekt-ID
    186355
  • Objekttypen
    Dachgeschosswohnung, Wohnung
  • Adresse
    Lindenstraße 28
    48683 Ahaus
  • Etage
    1
  • Etagen im Haus
    1
  • Wohnfläche ca.
    74,81 m²
  • Zimmer
    4
  • Schlafzimmer
    3
  • Badezimmer
    1
  • Küche
    Einbauküche
  • Baujahr
    2025
  • Zustand
    Erstbezug
  • Ausstattung
    gehoben
  • Haustiere
    nach Vereinbarung
  • Stellplätze gesamt
    40
  • Stellplätze
    Stellplatzmiete: 40,00 EUR (Anzahl: 40)
  • Heating Costs In Service Charge
    1
  • Kaltmiete
    895,00 EUR
  • Nebenkosten
    130,00 EUR
  • Warmmiete
    1.025,00 EUR

Ausstattung / Merkmale

  • ✓ Balkon/Terrasse
  • ✓ Einbauküche
  • ✓ Gäste-WC
  • ✓ Keller

Energieausweis

  • Energieausweis
    wird bei Besichtigung vorgelegt

Objekt­beschreibung

Beschreibung

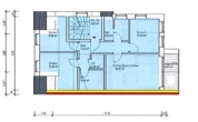
Die Wohnung befindet sich im ersten Stock eines Gebäudes mit 2 Wohneinheiten. Die Wohnfläche beträgt 74,81 m² und umfasst 4 Zimmer, davon 3 Schlafzimmer. Das Apartment liegt im Dachgeschoss und bietet einen modernen Grundriss.

In Absprache mit dem Mieter und den Eigentümern muss vor Einzug geklärt werden, wie die Ausführung der Malerarbeiten im Objekt erfolgen soll. Dieses Detail wird vor Erstellung des Mietvertrags geklärt.

Ausstattung

Zur Ausstattung gehören eine Einbauküche welche mit einer monatlichen Miete in Höhe von 70 Euro berechnet wird, ein Balkon zum Entspannen sowie ein Gäste-WC. Die Beheizung erfolgt über eine umweltfreundliche Wärmepumpe/ Fussbodenheizung, was für niedrige Energiekosten sorgt. Ein Außenstellplatz ist vorhanden, ideal für bequeme Parkmöglichkeiten (Gebühr 40,--).
Ein separater Kellerraum runden das Angebot ab.

Sonstiges

Die Wohnung ist ab dem 1. Juli 2026 verfügbar. Die monatliche Kaltmiete beträgt 895 EUR, zuzüglich Nebenkosten von 130 EUR, Stellplatz 40,-- Euro und Küchennutzung 70,-- Euro, sodass sich eine Gesamtmiete von 1135 EUR ergibt. Die Wohnung eignet sich für Personen, die eine moderne und gut ausgestattete Unterkunft in einer zentralen Lage suchen.

Lage

Die Immobilie liegt in der Lindenstraße in Ahaus, einer lebendigen Stadt im Nordwesten Deutschlands. Die Nachbarschaft ist gut an das öffentliche Verkehrsnetz angebunden, mit nahegelegenen Buslinien und der Nähe zu den Stadtzentren. Einkaufsmöglichkeiten, Bäckereien und Grünflächen sind bequem zu Fuß erreichbar. Die Lage ermöglicht eine einfache Anbindung an umliegende Städte wie Bocholt und Münster.

Direktanfrage

* Pflichtangaben
 SSL-verschlüsselt
Darstellung der Immobilien mit WP-ImmoMakler und Daten aus